Gegen Gebot: Haus mit 11 Zimmern auf ca. 472 m² Wohnnutzfläche - zwei Einheiten zzgl. ELW
Top Angebot

























- Objektart
- Haus
- Objekttyp
- Zweifamilienhaus
- Vermarktungsart
- Kauf
- PLZ
- 84174
- Ort
- Eching
- Objekt-ID
- 48012JL
- Wohnfläche
- 324 m²
- Grundstücksgröße
- 922 m²
- Nutzfläche
- 148 m²
- Anzahl Zimmer
- 11
- Anzahl Badezimmer
- 3
- Baujahr
- 2001
- Endenergieverbrauch
- 68,6 kWh/(m²a)
- Energieausweis
- Verbrauchsausweis
- Energieausweis gültig bis
- 01.11.2030
- Energieeffizienzklasse
- B
- Außen-Provision
- 1,79 % Käuferprovision inkl. 19 % MwSt.
Beschreibung
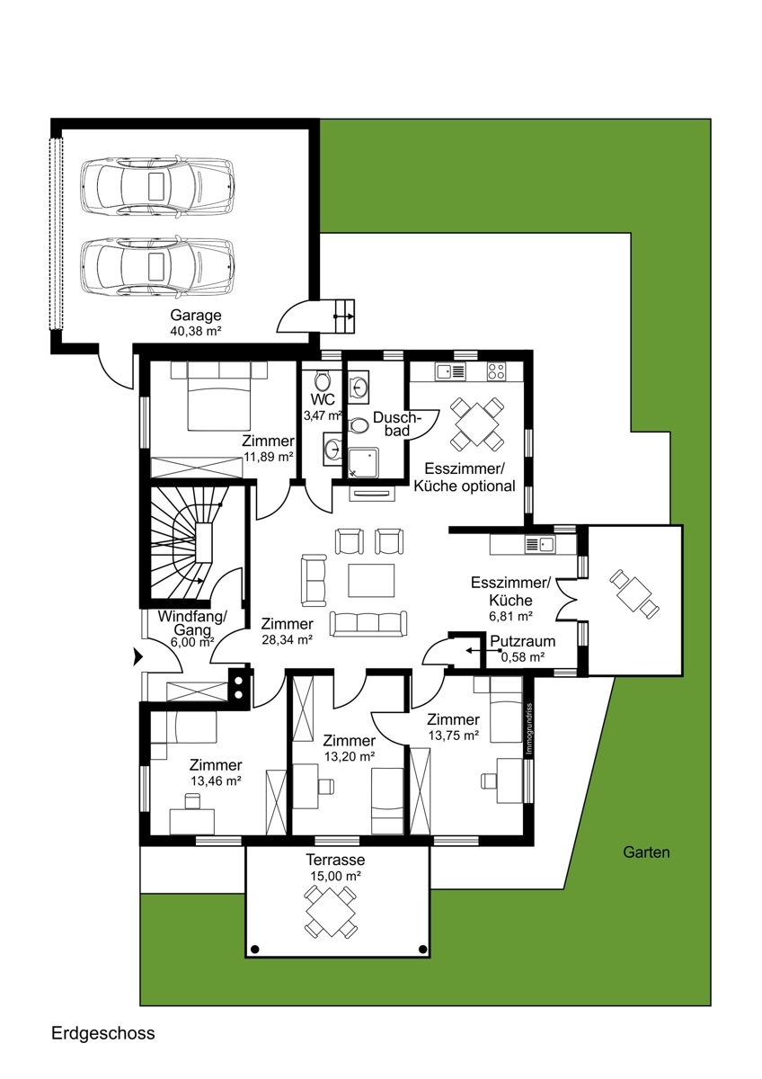
Dieses großzügige Einfamilienhaus mit Praxiseinheit im Erdgeschoss auf ca. 472 m² Wohnnutzfläche wurde im Jahre 2001 in Massivbauweise errichtet und steht auf einem ca. 922 m² großen, real geteilten Grundstück mit einem großen uneinsehbaren Südwestgarten in einer ruhigen Lage in einer Anliegerstraße am Waldrand. Zur Liegenschaft gehören eine große Doppelgarage sowie sechs Außenstellplätze.Die Wohnfläche verteilt sich auf die beiden Etagen Dachgeschoss sowie die darüber liegende Galerieebene. Das Gebäude ist komplett unterkellert.
Im Erdgeschoss befindet sich die ehemalige Praxisetage, die mittlerweile in Wohnraumqualität ausgebaut wurde, siehe Fotos. Diese Erdgeschosseinheit enthält ein neues Duschbad mit WC und Tageslicht sowie ein neues Gäste WC mit Fenster. Es ist denkbar, die Nutzfläche von ca. 116 m² im Rahmen einer Nutzungsänderung zur Wohnfläche umzuwandeln. Von der nach Südosten ausgerichteten Küche/ Esszimmer hat man Zugang zur südöstlichen Terrasse, eine größere überdachte Terrasse befindet sich auf der Westseite. Im Erdgeschoss befindet sich noch eine praktische Garderobe.
Durch die Nutzungsänderung der Erdgeschosseinheit lässt sich die Gesamtwohnfläche auf ca. 324 m² Wohnfläche vergrößern.
Über den Treppenaufgang erreicht man das Obergeschoss mit der Wohnetage. Diese besteht auf der einen Seite aus einem sehr großen Wohn-/ Esszimmer mit ca. 50 m² und einer hochwertigen Einbauküche mit einer großen abschließbaren Durchreiche. Vom Wohnzimmer hat man Zugang zum großen Südwestbalkon mit hervorragendem Ausblick über die Dächer der Ortschaft auf das idyllische Umland. Im hinteren Bereich dieser Etage befinden sich die Schlafräume und zwei Bäder, eines davon als großes Tageslichtbad mit Dusche, Badewanne und großem Waschtisch.
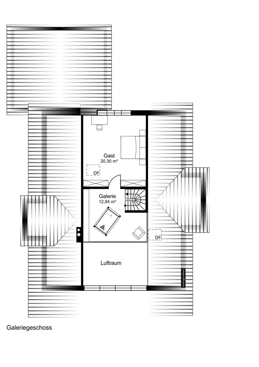
Die darüberliegende zweite Dachgeschossebene erreicht man über eine Holztreppe. Sie beinhaltet die Galerie mit imposantem Blick über das große Wohnzimmer. Dahinter befindet sich ein weiteres Zimmer, das z. B. als Gäste- oder Musikzimmer genutzt werden kann. Das große bodentiefe Fenster mit einem französischen Balkon und ein Dachflächenfenster sorgen für eine optimale Belichtung.
Abgerundet wird das Angebot durch eine große Kelleretage mit Waschkeller sowie weiteren trockenen Kellerräumen und einem ca. 27 m² großem Hobbyraum mit Heizung und drei Lichtschächten.
Hinweis: Der Hobbyraum wurde zu 50% in die Wohnfläche eingerechnet.
Lage
Das Haus befindet sich in einer perfekten Lage. Die Gemeinde Eching ist sehr verkehrsgünstig gelegen, in nur ca. drei Minuten erreicht man die Auffahrt zur A92 zwischen München und Deggendorf. Das Zentrum von Landshut mit der schönen Altstadt und der bekannten Burg Trausnitz erreicht man mit dem Auto in wenigen Minuten Fahrzeit, zudem ist der Münchner Flughafen nur ca. 20 Fahrminuten entfernt, bis München sind es ca. 30 Minuten mit dem Auto. Der ca. 1 Stunde entfernte Nationalpark Bayerischer Wald lädt im Winter zum Langlauf- und Alpinski, im Sommer zum Mountainbiken und Wandern ein.Die umliegende Bebauung im Wohngebiet besteht vorwiegend aus Einfamilienhäusern. In der Gemeinde befinden alle notwendigen Einrichtungen des täglichen Bedarfs, z.B. ein großer Edekamarkt, eine Bank- und eine Postfiliale, das Rathaus, Ärzte, Schulen, ein Kinderhort, Kindergärten sowie 3 Hotels mit Restaurants sind hier vorhanden.
Erholungs- sowie Sportmöglichkeiten bieten z. B der Aquapark, der Turn- und Sportverein, die Tennisanlage, ein Fußballplatz, ein Campingplatz mit Badeweiher und Restaurant sowie Fahrrad- und Wanderwege, z.B. der Landshuter Höhenwanderweg. Des Weiteren liegt der Echinger See vor der Haustür, der als Natur- und Vogelschutzgebiet bekannt ist. Die nahe gelegene Isar bietet Möglichkeiten zum Kanufahren oder zum Wandern.
Ausstattung
- Großes Wohnzimmer mit Essbereich, Fernsehbereich und Zugang zum Südwestbalkon mit Markise- Große Terrassenglasfront wird mit elektrischen Rollos verschattet
- Gemauerter drehbarer Grundofen mit Sichtscheibe sorgt für eine behagliche Atmosphäre im Wohnzimmer
- Hochwertige Einbauküche mit diversen Ober- und Unterschränken im zeitlosen Design in weiss und Aluminiumoptik, Arbeitsplatte in Granitoptik und Einbaugeräten wie Spülmaschine, Ceranherd, Backofen und einem neuen Side by Side Kühlschrank
- Ruhiges Schlafzimmer mit Ankleidebereich und Wäscheabwurfschacht
- Galerie mit Billardtisch über dem Wohnzimmer, auch als Bibliothek nutzbar
- 2 Bäder mit WCs, eines davon mit Tageslicht, 2 WCs im Erdgeschoss
- Vorwiegend Parkett in den Wohnräumen, weiße Kunststofffenster, Rollos zur Südostseite
- Großer Tankraum mit 4 Tanks je 1.500 l
- Großer Fitnessraum mit Sauna und Dusche für die ganze Familie
- Photovoltaikzellen zur Stromerzeugung auf dem Dach
- Überdachter Hauseingang mit Podest und zwei weißen Säulen
- Gemauerte Doppelgarage mit Sektionaltor und elektrischer Fernbedienung sowie 6 Außenstellplätze
Sonstige Angaben
Maklerprovision:Alle Angaben basieren ausschließlich auf Auskünften, die vom Auftraggeber an uns weitergegeben wurden. Das Angebot ist vertraulich, eine Weitergabe an Dritte bedarf unserer Zustimmung. Der Maklervertrag mit uns kommt durch Inanspruchnahme unserer Leistungen zustande. Sollte Ihnen das nachgewiesene Objekt bereits bekannt sein, bitten wir Sie, uns dies unverzüglich mitzuteilen. Die vom Käufer zu zahlende Provision in Höhe von 1,79 % inkl. der gesetzlichen Mehrwertsteuer auf den Kaufpreis ist bei Abschluss des notariellen Kaufvertrages verdient und fällig.
Im Kaufpreis ist die Doppelgarage bereits enthalten. Die in den Grundrissen dargestellte Möblierung dient lediglich der besseren Veranschaulichung, Möbel sind nicht Bestandteil des Kaufpreises.
Die Wohnflächenangabe von ca. 324 m² bezieht sich auf den Zustand der Erdgeschosseinheit nach einer Nutzungsänderung zur Wohnung.
Ansprechpartner
Herr Jiri Lavicka
Immobilien Zippold GmbH
Kriemhildenstr. 40
80639 München
Telefon1
089-17958195
mobile
0176-21141024
Email
j.lavicka@immobilien-zippold.de